00件
最近見た物件
00件
検討リスト
日本トータルプロデュース > 物件一覧 > ワコーレ須磨ザ・フィールズ > 103
徒歩20分の場所に神戸市立だいち小学校があります。相場としても妥当な、3,100万円の物件となっています。システムキッチンは使いやすく汚れにくいのでご好評です。神戸市須磨区での暮らしを、日本トータルプロデュースが取り扱う山陽本線須磨海浜公園周辺のお住まいで手に入れましょう。お電話は、072-990-6686までお問い合わせ下さい。











(※元利均等方式 金利5.00%まで ※返済年数5~50年まで入力できます)
(※ボーナスは年2回で計算しています。1000万円まで入力できます)
(※物件購入時、その他諸費用が発生する場合がございます)
| 所在地 | 兵庫県神戸市須磨区磯馴町6丁目1-22 | ||
|---|---|---|---|
| 交通 | |||
| 間取り/詳細 |
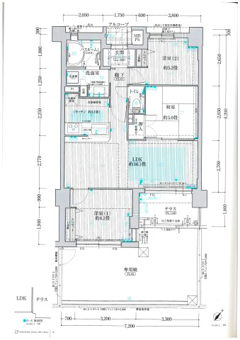
3LDK LDK 16.1帖/和室 5.0帖/洋室 5.2帖/洋室 6.2帖 |
||
| 専有面積/バルコニー面積 | 68.65㎡/6.08㎡ | ルーフバルコニー面積/テラス面積/専用庭面積 | -/-/26.54㎡ |
| 価格 | 3,100万円 | ||
| 管理費 | 10,727円 | ||
| 修繕積立金 | 17,080円 | 修繕積立基金 | - |
| 権利金 | - | 駐車場/月額料金 | 空有(1台)/2,000円 (税込) ハイルーフ車可 |
| 土地の敷金/保証金 | -/- | 借地料/借地期間 | -/- |
| 土地権利 | 所有権 | 国土法届出要否 | 不要 |
| 用途地域 | 第一種住居 | 地勢 | 平坦 |
| 種別/構造 | 中古マンション/鉄筋コンクリート | 向き | 南東 |
| 築年月(築年数) | 2010年 1月 (築15年) | ||
| 所在階/階建 | 1階/6階建 | 棟総戸数/販売戸数 | 24戸/1戸 |
| 管理組合有無 | 有 | 管理形態 | 管理会社に全部委託 |
| 管理員の勤務形態 | 日勤 | 管理会社 | 株式会社日本ネットワークサービス |
| 取引態様 | 仲介 | 現況 | 空家 |
| 引渡し | 即時 | 建築確認番号 | - |
| 物件番号 | 99557379 | 取引条件の有効期限 | 2025年12月16日 |
| 設備条件 |
|
||
| 備考 | 徒歩20分の場所に神戸市立だいち小学校があります。宅配ボックスがあるのでリモートワークでも直接受け取る必要がなく仕事に集中することができます。神戸市須磨区エリア内にある山陽本線須磨海浜公園周辺で不動産をお求めなら、地域に詳しい当社にお任せ下さい。新生活を快適にスタートできるよう、しっかりとサポートいたします。 | ||
| 設備(その他) | ビルトインガスコンロ新調 | ||
| 条件(その他) | 駐車場積立金月:5,000円 専用庭使用料月:800円 ホームセキュリティー費月:990円 | ||
| 取扱会社 |
|
||
| QRコード |
このQRコードを読み取ることで、スマホでも物件情報を確認できます。 |
||
※地図上に表示される物件の位置は付近住所に所在することを表すものであり、実際の物件所在地とは異なる場合がございます。
神戸市須磨区以外の市区町村から探す
路線から探す